1 / 5
| Customization: | Available |
|---|---|
| Material: | Wood and Steel |
| Type: | Central Bench |
Type: JH-WF153
C-frame wood Lab furniture price is highly competitive. Its price range is typically from USD150 to USD230 per meter depending on various worktops and wood types. Considering its stability, the structure is more stable and durable than all-wood lab benches.



| Component | Material Description |
|---|---|
| Worktop | 12.7/16/19mm lab grade phenolic resin, epoxy resin, or ceramic countertop options. |
| Structure | Floor mounted/C-frame/H-frame/O-frame galvanized steel pipe. |
| Cabinet | 18mm plywood/MDF/chipboard with double HPL/melamine and 2mm PVC edging. |
| Hinge | 304 stainless steel hydraulic heavy-duty hinge. |
| Handle | 304 stainless steel U-type handle or integrated aluminum alloy grab handles. |
| Reagent Shelf | Tempered glass and steel plate construction. |
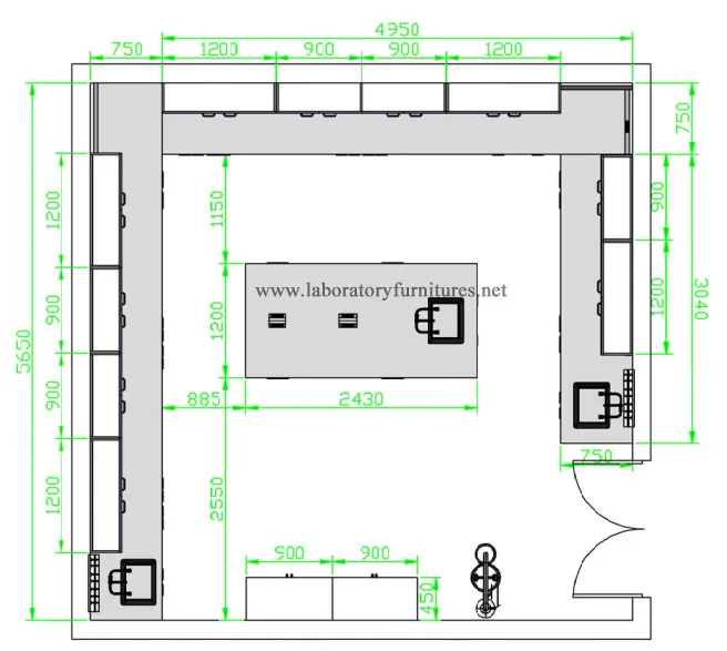
We provide free CAD and 3D plan drawings to help visualize your laboratory setup.




| Feature | Phenolic Resin | Epoxy Resin | Ceramic |
|---|---|---|---|
| Heat Resistance | 135ºC | 600ºC | 1000ºC |
| Corrosive Resistance | High (Acid/Alkali) | High (Acid/Alkali) | Excellent |
| Water Absorption | 0.6% | 0.008% | Excellent |
| Thickness | 12.7/16/19mm | 16/19/25mm | 20mm |
Our production line utilizes imported German facilities and CNC technology to ensure high precision and superior craftsmanship for every component.
Packaging: Cartons for LCL goods, wooden cases for FCL goods. Special packing needs can be accommodated.
Shipping: Available via train, air, or sea (20GP, 40GP, 40HQ containers).
Rimkok Furniture